Architectual + Interior Design

Concept development and interior/architectural design proposals with export-ready CAD data for contractors and consultants.

Concept-Led Design for Residential & Commercial Spaces

We provide architectural and interior design services that combine creative vision with practical, build-ready thinking.
Working from accurate digital models, we design spaces that are functional, visually compelling and easy to communicate to clients, consultants and contractors.

Our process bridges the gap between concept design and technical delivery, ensuring ideas translate clearly from screen to site.

Our Design Approach

1. Brief & Site Understanding
We establish spatial requirements, user needs, budget considerations and site constraints using surveys, drawings or digital capture.

2. Concept Design & Layout Development
Initial layouts, zoning studies and interior concepts developed in 3D to test form, flow and usability.

3. Design Refinement & Coordination
Iterative development informed by feedback, with clear visuals used to coordinate decisions and approvals.

4. Presentation & Handover
Designs are packaged for planning, client sign-off or contractor use, with visuals that clearly explain intent.

Deliverables

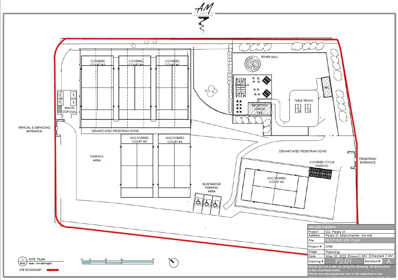
1. Concept layouts and space planning models

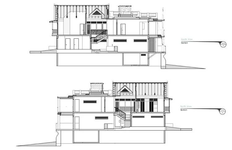
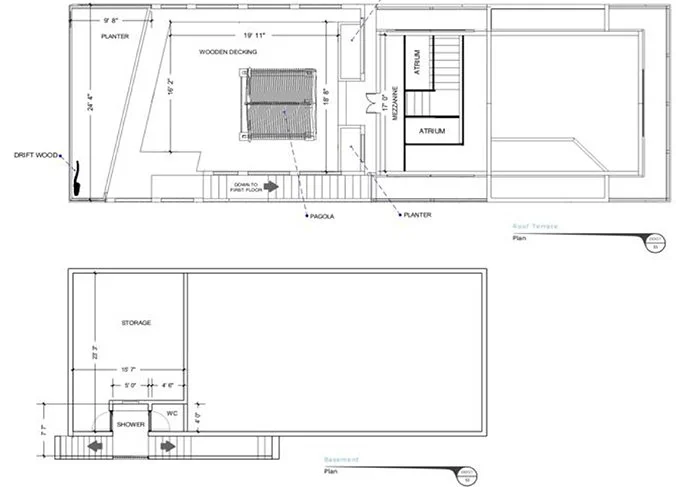
2. Architectural and interior 3D models (SketchUp)

3. High-quality visualisations and renders

4. Material, finish and mood visuals

5. Layout drawings and annotated views

6. Exportable data for consultants and contractors